Crankworx 2012 In Whistler Accommodation
For the ninth year in a row, Whistler plays host to Kokanee Crankworx this August. The World's largest freestyle mountain biking festival runs from August 10-19, 2012. This unique event brings international riders, artists, and musicians together to celebrate the mountain biking culture. Notorious events such as the Jeep Canadian Open Downhill and Red Bull Joyride, will be joined this year by the new Dual Speed and Style event presented by Avid.
Book your Crankworx accommodation early to get the best selection. There are many condos to choose from for less than $100 per night. Reserve your lodgings today and ensure that you don't miss any of the action.


An award winning complex that offers a comfortable and spacious layout in a contemporary, chic design with a private hot tub, parking and so much more.
***GREAT LOCATION IN VILLAGE*** Quiet corner unit with 2 entrances Free WIFI Internet and Free Parking in our Underground Garage. Our home has been updated throughout. There is an outdoor Pool and Hot Tub only steps away. Hope you visit us soon!
TRUE SKI IN SKI OUT PENTHOUSE. Luxurious, spacious, fully renovated condo. 3 Bedrooms, all with windows or sliding doors. Stunning mountain views from every room. Heated floors. Gas fire. Air conditioning. In suite laundry. Free parking. Free WiFi. Netflix. ...
Private, luxury Chalet on Nicklaus North Golf Course. Incredible mountain views. 3-minute drive to the Village. 3200 sq. ft. house, 5 bedrooms (4 king, 4 Twin-XL), 4.5 bathrooms, Chef's kitchen, Dining for 12, 6 HDTVs, gas BBQ, 2 gas fireplaces, outdoor ...
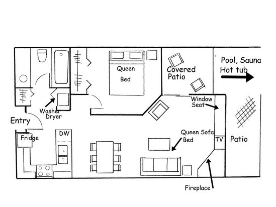
4 Bed + Den / Sauna / Steam Room / Hot Tub / Amazing Views. This fabulous custom built home in Blueberry Estates features a spacious layout in a very quiet setting. Guests will enjoy the amazing views of Whistler and Blackcomb Mtns
A short glide to the NEW Blackcomb Gondola, this cozy 2 BR, 2 BA unit is well-maintained. Features: ski-in/out, 1 King and 2 double beds, equipped kitchen, premium soap/shampoo, balcony with bbq, fireplace, boot dryers & more! Quiet mountain-facing v...
Excellent Village Location. Private Hot Tub with mountain views. Situated just steps from the Village Stroll and market place, yet far enough away from the Village noise. We have free assigned underground Secure Parking. The shuttle to the gondola's ...
FAMILY TOWNHOME --- Canadian Owned--- short walk to the Village. This is the perfect townhome for a family holiday. Children are welcome. Updated with the Kitchen renovated in 2025.
Modern & spacious 981 sq.ft. townhouse with pool and hot tub just outside your door. This 2 bedroom 2 bathroom unit was recently renovated and has an additional queen sofa bed in the living room. Quiet location in Whistler village and yet just across ...
Prime Ski In/Ski Out location, Upper Village, Blackcomb. Located in the Greystone Lodge. One of the largest and nicest condos in the building.
Assigned Parking available. Welcome to our comfortable 2 Bedroom, 2 bathroom Townhouse in Whistler.
SKI-IN/OUT...Glacier lodge , fully renovated, modern, fully equipped Condo.Check-in at front desk on arrival . This condo sleeps 4-6. Free Internet, secure parking. Unbeatable location. Walk everywhere - lifts & ski school
Luxury corner townhome, heated slate floors, modern kitchen, granite countertops throughout. Three bedrooms and 3 bathrooms make this an easy place for a family or friends to spread out and enjoy themselves. Huge vaulted ceilings and windows add to the ...
2 level, 2 bedroom TOWNHOME. PRIVATE HOT TUB. GREAT LOCATION - just minutes to village stroll and ski lifts. For added convenience you can use the free shuttle to lifts across the street. Whistler Marketplace with grocery store, liquor store, restaurants ...
We have it all in our cozy condo. Super convenient - 1 minute walk to Whistler's most comfortable Gondola. All amenities needed are right across the street in Creekside mall. The new hot tub is one of the biggest in Whistler. Free underground parkin...
This bright and light updated 3 bedroom, 2 bathroom property sleeps 8 and is perfect for two families or a large group. The unit offers a fully stocked kitchen, a private spacious balcony, and a common rooftop hot tub with spectacular views